Flitch
HOUSE EXTENSION / REFURBISHMENT
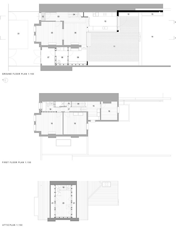
Ranelagh, Dublin 6
The project is to refurbish a late Edwardian House, opening it to the garden by redistributing elements of accommodation to embrace the outdoor space and draw the outside in, combining house and garden. The work is more intension than extension, the floor area is reduced while the garden is extended into the living areas. A new edge is made which wanders from one party wall to the other making an indented envelope stepping inside and out catching the sun as it passes through the day. This new edge to the garden starts as a liner to a neighbouring extension, wraps around kitchen and dining room and ties playroom and utility into the rear of an existing garage.
Needle and Prop and Trim
The project strips away previous extraneous extensions and undercuts the existing return at ground floor. The rear walls at first floor are propped on a chassis of steel expressed as a horizontal datum of structure above which the original sits and below which the plan is freed along the edge of the garden. This flitched steel trimmer of insulated back to back channels, both releases the plan and binds it to the garden, extending as canopy at one end and playroom at the other, with kitchen and dining framed between. The steel bearers are propped by concrete piers extended up at the limits of the envelope from a continuous meridian of plinth which then extends out into the garden as a wall carrying roof water to a cistern at the limits of the works. Within, the superstructure is borne on a round steel column set free from the envelope and expressed as a pivot between entrance, kitchen and dining. The new structure captures and modulates new spaces - oak framed joinery spans between concrete plinth and the outer steel channel, (or hangs from the channel and bears on the plinth). The resultant free façade allows daylight to penetrate the living spaces set out around the courtyard.
New Linings
A stairs inserted at the first floor landing, leads to the attic drawing light down from above. The attic stair casing houses services and pockets a door to a box room converted to a bathroom. The attic is insulated and relined as a sleeve of accessible space with under eaves storage at the top of the house. PVC windows are removed from existing window opes and new double glazed sash windows installed. The suspended ground floor is insulated from below with breathable hemp insulation and floor boards relayed, the lower kitchen, playroom and utility room floors are of polished screed, insulated, with under-floor heating.
Resources
On the south facing rear roof slope a solar panel providing hot water to the house stored in a new cylinder beneath the new attic stairs. Roof water is gathered from existing gutters onto the new canopy to the rear of the kitchen and collected from there in a rainwater cistern extending from the courtyard into the garden. The palette is restricted: steel where required; ggbs concrete (boardmarked and polished); oak joinery; salvage brick paving.
The project sets out to gain space through a reduced footprint.
Published
"Flitch, Ranelagh, Dublin 6" - New Irish Architecture 2011










