Iveagh
STITCH
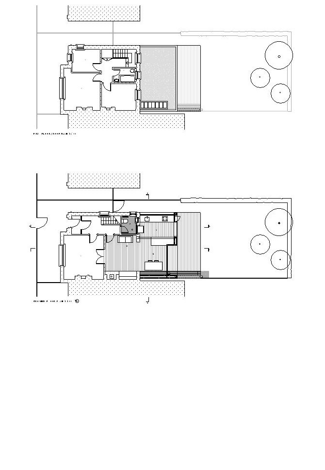
Iveagh Gardens, Dublin
The project was to re-work and extend the ground floor of a brick house forming part of an Iveagh Trust housing enclave in South Dublin designed by O’Callaghan and Webb in 1926, which comprised a number of typological variations, both semi-detached and terraced. In these houses the living spaces have a controlled relationship with the communal realm to the front, mediated by careful articulation of the front gardens, thresholds and openings. The relationship with the rear yard is more introverted in line with its function as service yard rather than garden amenity. The brief was to make a kitchen/dining/family room to mediate between living room and garden.
The family room is fitted out with woodburning stove and study desk, floors in waxed salvaged pine. A small bathroom with shower is inserted under stair as wet room. In kitchen all joinery is Douglas Fir, waxed internally and stained black externally, with honed Valentia Slate worktops. Dining table and fitted furniture throughout to architect’s design.
An earlier conservatory and back-room kitchen fit-out are stripped away and a new enclosure added using the language of English Garden Wall Bond brickwork exposed inside and out, with granite window cills. The brick party wall carries a built-in seat for the dining table and is extended into the garden with west-facing seat and secret gutter spouting roof water to feed the herbaceous border. A simple roof structure is inserted, of exposed Douglas Fir joists sitting into a steel channel, supported at mid-span by a steel beam. There is continuous rooflight over the seat/party wall, and clerestory opening window over the kitchen counter for daylight and ventilation.
New and old are stitched seamlessly together with simple, direct construction articulated with judicious openings providing daylight, ventilation and visual connections. Workmanship is of a quality consistent with the original construction on a very modest budget.










