Mountjoy Sq
MODIFICATIONS TO A HOUSE - MOUNTJOY SQUARE
Dublin
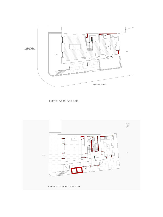
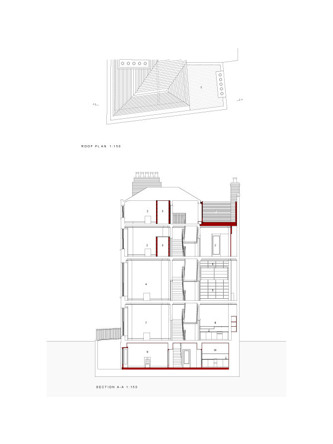
The conservation of a derelict end-of-terrace Georgian house in Mountjoy Square. The creation of a roof terrace to replace a burnt-out bedroom within the existing envelope, and the careful insertion of services as part of fitted furniture allow the building to revert as a dwelling.







